西安新中式住宅设计赏析-天鹅堡样板间
最新案例
2016年01月05日
6517
西安新中式住宅设计赏析-天鹅堡样板间
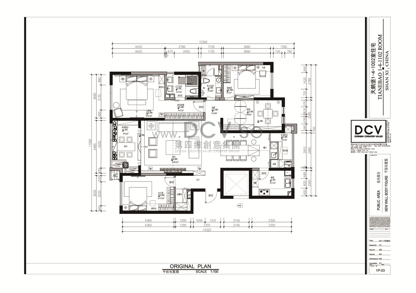
项目名称:天鹅堡住宅项目
项目地址:西安.曲江
项目类型:家装设计
项目面积:160㎡
设计风格:现代中式
设计公司:DCV第四维(www.dcv.so)
设计范围:室内设计/软装陈设
设计成员:王咏/雷棚
设计时间:2015年10月
主要材料:黑檀钢琴烤漆挂板 无缝壁布 德国灰石材 水泥砖 玫瑰金不锈钢 进口仿木纹瓷砖
设计说明:该家装项目位于西安曲江,采用目前流行的现代中式风格,该项目是在后现代建筑基础上适用于现代居住理念的中国风格,是中国传统风格文化意义在当前时代背景下的演绎,是对中国当代文化充分理解基础上的当代设计。 新中式风格不是纯粹的元素堆砌,而是通过对传统文化的认识,将现代元素和传统元素结合在一起,以现代人的审美需求来打造富有传统韵味的事物,让传统艺术的脉络传承下去的具有中国特色的中国风格。总之,就是将传统的元素赋予现代的设计中,让人既体会到现代设计的科技性,又体会到传统的中国韵味。
相关阅读:

