西安简约优雅别墅样板间设计-金地湖城大境
最新案例
2016年11月04日
5031
西安-金地湖城大境别墅样板间设计
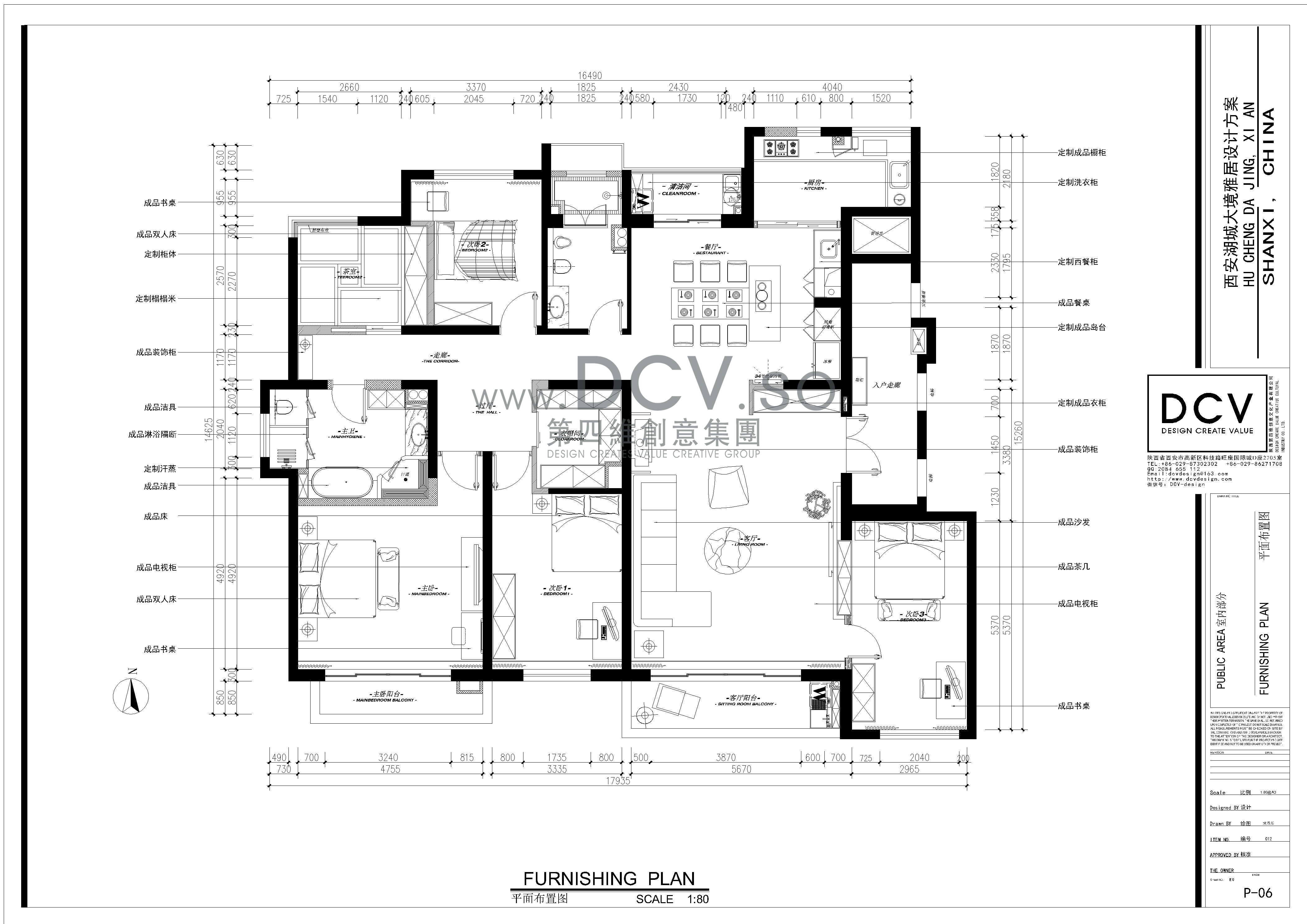
项目名称:湖城大镜天第号
项目地址:中国.西安.曲江
项目类型:私宅
项目面积:240㎡
设计风格:简约优雅
设计公司:DCV第四维(西安)
设计范围:室内设计/软装陈设/摄影拍摄
设计成员:王咏/呼延鑫/张荣/索燕东
设计时间:2015.6
竣工时间:2015.12
摄影人员:蔡少龙
主要材料:地砖、黑檀面板、玫瑰金收口线、雅士白石材、壁布、壁纸
此业主为公司的老客户。设备涉及到中央空调,新风,全屋水净化,安防等。经过改造后,中厨扩大了近一倍,西厨开放和餐厅并立为一个区域。厨房也人性化的安装了空调。下沉式卫生间也便于卫生洁具的合理布局摆放,三间卫生间改为两间,位于屋子正中的卫生间改为衣帽间。主卫除了安置基本的淋浴区 浴缸区 马桶 面盆 还合理布局一角安装了汗蒸区。墙面局部用了雅士白石材和亚麻硬包。主卧和次卧区域的门厅拆除改造后形成一个方形门厅区域。改造后空间的采光通风 动静流线更为合理。玫瑰金的运用为内敛优雅的居室增加了些许俏皮。

